Wohnung kaufen Ahrensburg

Zentral gelegene Erdgeschosswohnung mit Terrasse und Hobbyräumen

Objektdaten

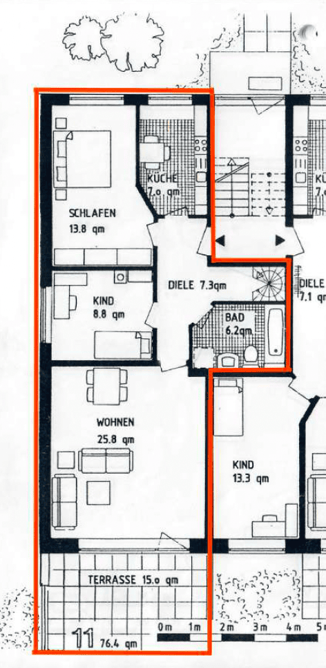
Grundriss Oben
Grundriss Unten

Ausstattung & Merkmale

Energie & Bausubstanz

Details zum Energieausweis:

  • Gebäudetyp: Wohngebäude
  • Baujahr lt. Energieausweis: 1994
  • Wesentliche Energieträger: Gas
  • Energieausweistyp: Bedarfsausweis
  • Endenergiebedarf: 140,0 kwh/a/m²
  • Energieeffizienzklasse: E

Objektbeschreibung

Diese Wohnanlage wurde 1994 errichtet und umfasst zwei Häuser á 10 Wohneinheiten inkl. Tiefgarage.

Das Gebäude ist in 2,5 geschossiger traditioneller Bauweise errichtet (Stahlbetonkonstruktion, 36,5 cm starkes Kalksandstein-Vollsteinmauerwerk) und mit cremeweissen Vormauerklinker verblendet.

Der Eingang zur Wohnanlage verläuft mittig zwischen beiden Häusern, die Hauseingänge liegen ruhig auf der Rückseite der Gebäude.

Diese Wohnung verfügt über insgesamt 120,9m² Gesamtfläche, verteilt auf 2,5 Zimmer im Erdgeschoss mit 76,4m² Wohnfläche, sowie 44,5m² Nutzfläche in Hobbyräumen im Untergeschoss.

Diese Hobbyräume sind direkt aus der Wohnung über eine platzsparende Treppe zu erreichen.
Die Räume sind mit Tageslichtfenstern, Heizkörpern sowie Fliesen ausgestattet und verfügen über eine Raumhöhe von 2,20m.

Zusatzfläche: im Untergeschoss erwarten Sie über 44m² Nutzfläche. Entweder direkt aus der Wohnung oder bequem über das Treppenhaus mit zusätzlichem Zwischenflur und feuerfester Sicherheitstür erreichbar.

Obergeschoss

Wohnbereich

Dieser gut geschnittene Grundriss bietet viel Staufläche, und einen direkten Zugang auf die Terrasse.
An der Stirnseite ist Platz für einen vollwertigen zusätzlichen Esstisch.
Sofa und Fernseher sowie Regalwand sind leicht zu stellen und haben eine angenehme Relation zueinander.
Das Panoramafenster auf der Südseite lässt viel Licht hinein und erlaubt einen besonders freien Blick auf die Terrasse.

Bad

Auch das Badezimmer ist durchdacht. Viel Bewegungsfreiheit und eine Badewanne für Ihre Entspannung.
Klassisch in weiss und anthrazit gehalten zeigt sich das Bad genauso aufgeräumt und gradlinig geschnitten wie der Rest der Wohnung.
2024 wurden Badewanne, WC sowie Waschbecken mit Unterschrank stilvoll und modern erneuert.
Die Waschmaschine ist aktuell im Souterrain untergebracht.

Schlafzimmer

Mit 13,8m² ist dieser Raum sowohl als Elternschlafzimmer, Kinderzimmer oder Büro nutzbar.
In der Vergangenheit wurde das Elternschlafzimmer auch im Souterrain eingerichtet um im EG Platz für zwei vollwertige Zimmer zu haben. Nach Osten ausgerichtet ist es ein idealer Schlafraum.

Büro

Das als Kinderzimmer geplante dritte Zimmer ist 8,8m² groß und nach Westen ausgerichtet.
Die indivuell angefertigte Mosaikarbeit im Fussboden wurde aufwändig hergestellt. Zusammen mit
einer klaren Raumstruktur und weissen Wänden ein ideales Arbeitszimmer.
Sämtliche Fenster der Wohnung sind mit Jalousinen ausgestattet.

Terasse

Eingewachsen und blickgeschützt liegt diese Terrasse in Südausrichtung vor dem Haus.Die Nähe zur
Straße sorgt für ein Gefühl der Angebundenheit an die Stadt – hier Wohnen Sie mitten im Leben.
Pflegeleicht angelegt ist hier Platz für 4 Personen.

 

 

Untergeschoss

Hobbyräume

Das 2,20m hohe Souterrain bietet mit seinem 25m² großen Raum viele Optionen. Ihr eigenes Gym,
Eisenbahnkeller, Nähstudio oder Abstellfläche. Ihren Ideen sind keine Grenzen gesetzt.
Wichtig: das Untergeschoss ist nicht nur durch die Wohnung, sondern über eine zusätzliche feuerfeste
Tür (über einen zusätzlichen Flur) auch mit dem öffentlichen Treppenhaus verbunden. So können
auch größere Gegenstände leicht rein und rausgetragen werden (Möbel, Fahrräder, Sportgeräte).

Sollten wir ihr Interesse geweckt haben, bieten wir ihnen gerne eine Besichtigung zu ihrem Wunschtermin an. Selbstverständlich nur Einzelbesichtigungen. 

Sie erreichen uns unter 04102-218 39 80 (Büro) sowie gerne auch unter 0176-999 888 77 in der Zeit von 9-18Uhr.

Bitte haben Sie Verständnis dafür, dass wir nur Anfragen mit vollständigen Kontaktangaben (Name, Adresse und Telefonnummer) beantworten.

Nur Einzelbesichtigungen. Bei den angegebenen Wohn- und Nutzflächen handelt es sich um ca. Maße und wurden uns von Dritten zur Verfügung gestellt. Wir weisen ausdrücklich darauf hin, dass die genannte Wohn- und Nutzfläche von der DIN-Wohnflächenberechnung abweichen kann. Alle Maße sind ca.-Maße und bei Bedarf vor Ort zu prüfen.
Die Angaben in diesem Exposé erfolgen daher ohne jede Gewähr. Maßgeblich sind die im Kaufvertrag geschlossenen Vereinbarungen. Wir bitten um Ihr Verständnis.
Die Verkaufsaufgabe wurde nach bestem Wissen sorgfältig zusammengestellt. Unser Exposé beruht auf den Angaben unserer Auftraggeber. Eine Haftung hierfür kann daher nicht übernommen werden.

3,57 % Provision (inkl. der gesetzlichen MwSt.)
Die Provision ist verdient und fällig bei Abschluss eines notariellen Kaufvertrages. Jeweils zu zahlen durch den Käufer sowie den Verkäufer.

Anfrage