Haus kaufen Ahrensburg – energieeffizientes Einfamilienhaus in Ahrensburg

Ruhige Fahrradstraße, moderne Ausstattung, ideal für Familien.

Objektdaten

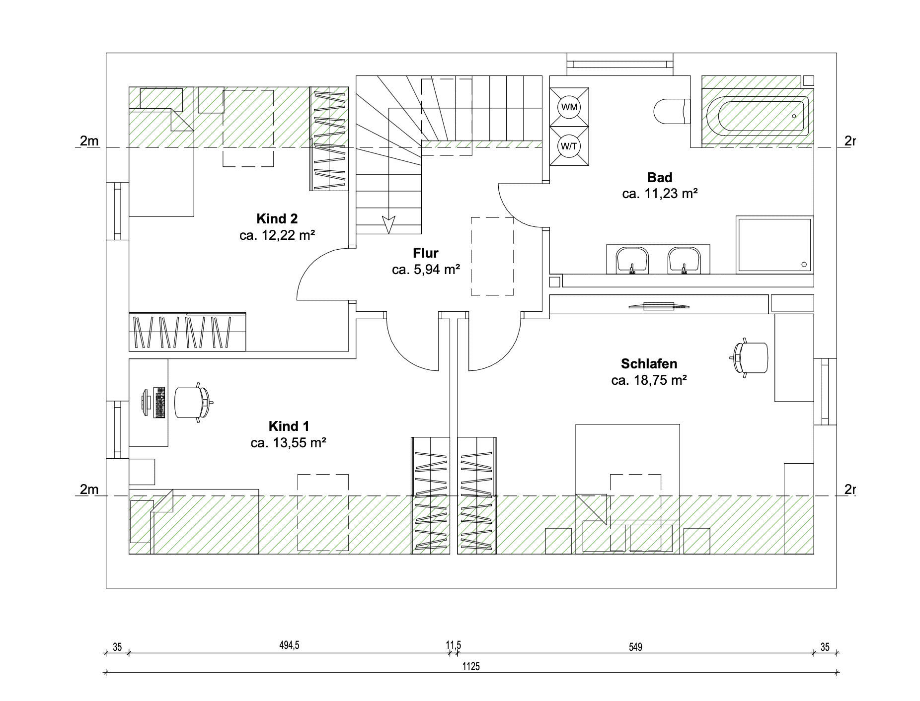
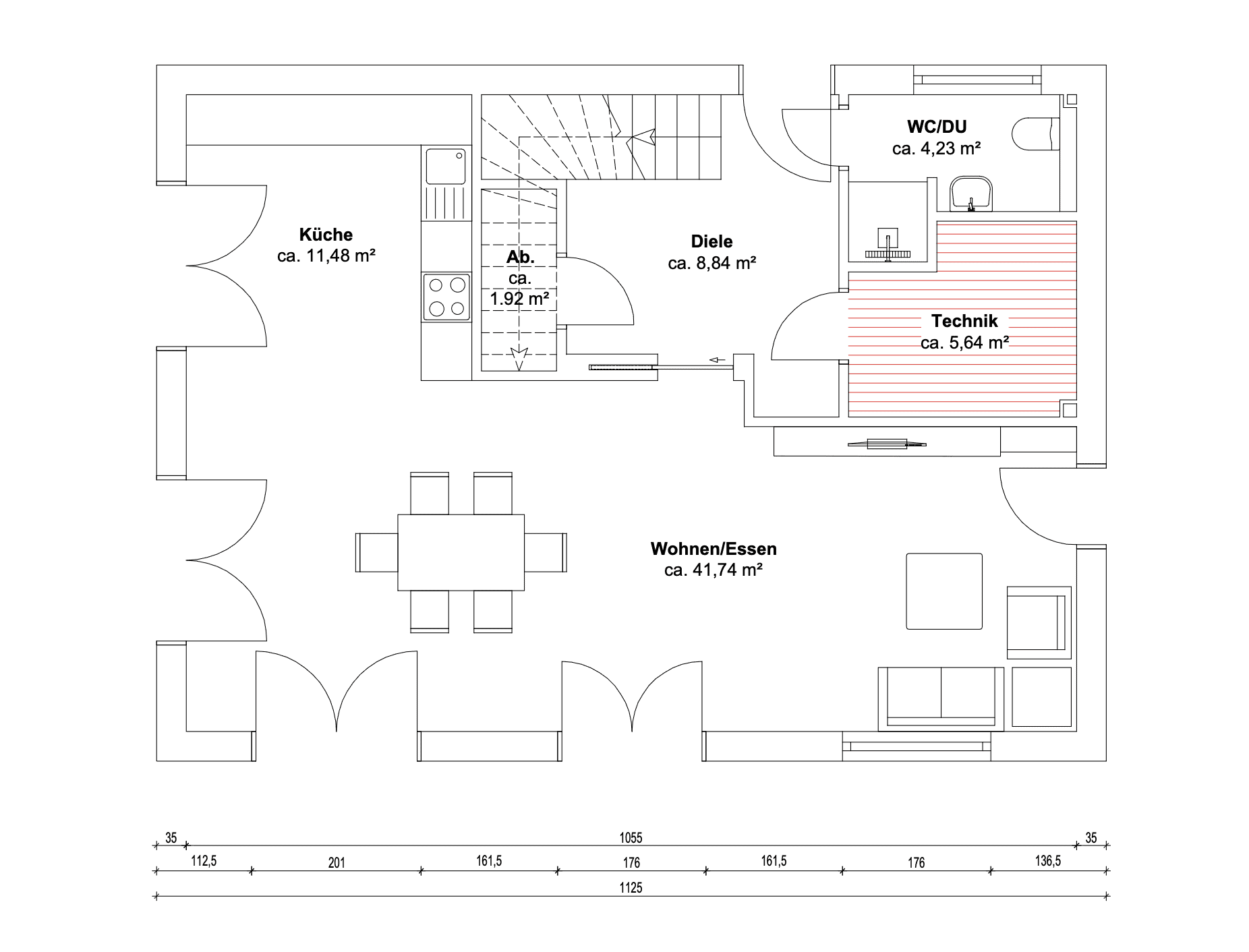
Grundriss Erdgeschoß
Grundriss Obergeschoß

Ausstattung & Merkmale

Energie & Bausubstanz

Details zum Energieausweis:

  • Gebäudetyp: Wohngebäude
  • Baujahr lt. Energieausweis: 2018
  • Wesentliche Energieträger: Gas
  • Energieausweistyp: Bedarfsausweis
  • Endenergiebedarf: 34,0 kwh/a/m²
  • Energieeffizienzklasse: A

Objektbeschreibung

Ahrensburg erfreut sich seit vielen Jahren ununterbrochener Beliebtheit. Insbesondere die infrastrukturelle Anbindung, die lebendige Innenstadt und die ruhigen Wohnlagen machen „Hamburgs schöne Nachbarin“ zu einer gefragten Adresse.

Der von Einfamilienhäusern geprägte Nordwesten der Schloßstadt ist hier besonders familien- freundlich. Der Mikrostandort Lilienweg zeichnet sich durch eine Vielzahl von Annehmlichkeiten für Familien aus: Kindergarten, Grundschule sowie weiterführende Schulen sind alle fußläufig erreichbar.

Dazu ist der Lilienweg eine der wenigen Fahrradstraßen von Ahrensburg, Hier gilt 30km/h und Vorfahrt für Radfahrer. Besonderes Highlight ist zudem der 2024 sanierte Abenteuerspielplatz im Lilienweg, der mit seinen Wasserspielen und Klettermöglichkeiten sicherlich der schönste und größte Spielplatz der Stadt ist.

Ein idealer, ruhiger aber zentrumsnaher Wohnort für eine Familien mit Kindern.

Das 895m² große Gesamtgrundstück wurde 2018 nach WEG geteilt und mit zwei freistehenden Einfamilienhäusern bebaut. Das hier angebotene südlichere Einfamilienhaus bietet klare Raumstrukturen mit hervorragend nutzbaren Flächen.

Das Grundstück bietet Platz für 3 Stellplätze und eine große Rasenfläche. Carport und Abstellraum bieten ausserhalb des Hauses viel Nutzfläche. 

Der Garten ist pflegeleicht angelegt und ist vor ungebetenen Blicken geschützt

Erdgeschoß

Der Sonne entgegen: das ideal ausgerichtete Grundstück ermöglicht eine Erschliessung von Norden und richtet das Wohn- und Esszimmer nach Süden aus. Durch diese perfekte Ausrichtung und durch den Wunsch, modern und offen zu Wohnen, wurde besonderen Wert auf einen großzügigen Essbereich gelegt. Diverse Abstellflächen sowie ein echtes Vollbad als Gäste-WC runden den Grundriss im Erdgeschoss ab.

Eingangsbereich

Der Eingangsbereich des Hauses ist lichtdurchflutet und geräumig. Von hier haben Sie neben dem Zugang zum Wohnzimmer auch direkten Zutritt zum Technik- und Abstellraum, dem Gäste-WC mit Dusche sowie einem Abstellraum unter der Treppe. Hier verstauen Sie mühelos die Dinge des Alltags.
Weiterer Stauraum findet sich im Einbauschrank mit Garaderobe. Ein weiteres Highlight ist das Fenster auf halber Treppenhöhe. Dies belichtet sowohl Erdgeschoss als auch Obergeschoss hervorragend.

Essbereich

Dieser Wohn-Essbereich ist das Zentrum des Hauses Der breite Esstisch ist der Mittelpunkt dieses Hauses. Hier wird gegesssen, kommuniziert, die Zeit verbracht. Darüber hinaus macht er auch als gelegentlicher Homearbeitsplatz eine gute Figur. Durch die umlaufenden bodentiefen Fenster ist der Raum stets perfekt besonnt. Sehr hochwertige und automatisch agierende Fensterverdunklung mit Windschutz (raffstores) riegeln den Raum auf Wunsch vor Sonne ab.

Küche

Diese Küche ist ein Traum für jeden Hobbykoch, und jeden, der werden möchte. Sie ist mit sehr hochwertigen Mielegeräten ausgestattet. Neben einer großen Kühl-/Gefrierkombi, einer Mikrowelle und einem Backofen, bieten Ihnen ein Einbau-Kaffeeautomat sowie ein integrierter Weinschrank Komfort der Extraklasse. Auf dem Induktionsherd mit integrierter Absaugung kochen Sie nahezu geruchslos, während Sie am Tresen hervorragend kommunizieren können.

Wohnzimmer

Da im Wohn-Essbereich besonderen Wert auf die Küche und den Essplatz als Zentrum gelegt wurde, fällt der Wohnbereich etwas kleiner aus. Die behagliche Raumbeziehung sorgt für ein kuscheliges Raumgefühl und bietet einen geschützten Rückzugsort.

Obergeschoß

Das Obergeschoss bietet drei vollwertige und exzellent belichtete Schlafräume sowie ein großes und komfortables Masterbad. Für mehr Staufläche steht ein Spitzboden zur Verfügung, der über eine ausziehbare Dachbodentreppe erreicht werden kann. Drei ähnlich große Wohnräume bieten Platz für 2 Kinder oder alternativ für ein Büro/ Gästezimmer. Im Spitzboden ist zusätzlich Staufläche (mit mittiger Stehhöhe). Dieser ist über eine Ausziehtreppe erreichbar.

Bad 

Dieses Masterbad lässt keine Wünsche offen: Eine Badewanne plus nahezu ebenerdige Dusche setzen den hohen Komfort des Hauses auch im Obergeschoss fort. Ein hochwertiger Doppelwaschtisch mit passender Möbelgarnitur (Hochschrank und Sideboard am Fenster) schaffen edlen Stauraum.

Schlafzimmer

Die drei Schlafzimmer im OG werden aktuell als Schlafzimmer, Kinderzimmer und Büro genutzt. Da snach Südosten ausgerichtete Eltern-Schlafzimmer bietet Platz für einen durchlaufenen Kleiderschrank sowie einen gemütlichen Platz unter der Dachschräge für das Bett. Das bodentiefe Fensterplus ein zusätzliches Dachflächenfenster (Velux-Fenster mit Verdunkelung innen und Sonnenschutz außen lassen viel Licht herein und schaffen eine helle angenehme Atmosphäre.

Kinderzimmer

Auch das Kinderzimmer verfügt über ein bodentiefes Fensterelement mit zusätzlichem Veluxfenster. Hier ist Platz für einen Schreibtisch, Kleiderschränke und Regale und einen frei bespielbaren Fussbodenbereich. Das zweite Kinderzimmer wird aktuell als Büro genutzt und ist ähnlich geschnitten.

 

Außenbereich

Carport und Abstellraum

Das hochwertig hergestellte Carport aus Stahl ist nicht nur besonders hell und groß, sondern auch stabil konzipiert. Das garantiert langandauernde Haltbarkeit (innenliegende Regenrinne) und die Begehbarkeit des Daches (bspw. zu Reinigungszwecken). Hinter dem Carport befindet sich ein abschliessbarer Geräteraum. Von hier gelangen Sie an die hintere Hausseite um kommen direkt auf die Terrasse. Die Holzwand rechts im Carport gehört zum Nachbarn und sorgt für Privatsphäre.

Terasse

Diese riesige Sonnenterrasse ist auf ca. 20m² komplett überdacht. Die hochwertigen Aluprofile sind pulverbeschichtet und mit Verbundsicherheitsglas (VSG) 8mm belegt. Der Unterbau besteht aus einer Varisol Markise – Typ T200 (Deutsches Qualitätsprodukt) mit hochwertigem Funkantrieb mit 2-Kanal-Handsender. So sitzen sie auf Knopfdruck im kühlen Schatten.Aufgrund der Konstruktion kann das Dach zu Reinigungszwecken betreten werden.

Garten

Die großzügige Rasenfläche ist nahezu blickgeschützt und nach Süd-Westen ausgerichtet. Durch dieni edrige Nachbarschaftsbebaung (selten) ist der Garten auch im Winter stets besonnt. Hier können Sie ein Bad in der Sonne nehmen, Gärtnern, oder Ihre Kinder beim Spielen beobachten. Über ein bereits eingewachsenes Zaunstück mit Tür gelangen Sie auf den Stellplatz neben dem Haus.

Sollten wir ihr Interesse geweckt haben, bieten wir ihnen gerne eine Besichtigung zu ihrem Wunschtermin an. Selbstverständlich nur Einzelbesichtigungen. 

Sie erreichen uns unter 04102-218 39 80 (Büro) sowie gerne auch unter 0176-999 888 77 in der Zeit von 9-18Uhr.

Bitte haben Sie Verständnis dafür, dass wir nur Anfragen mit vollständigen Kontaktangaben (Name, Adresse und Telefonnummer) beantworten.

Nur Einzelbesichtigungen. Bei den angegebenen Wohn- und Nutzflächen handelt es sich um ca. Maße und wurden uns von Dritten zur Verfügung gestellt. Wir weisen ausdrücklich darauf hin, dass die genannte Wohn- und Nutzfläche von der DIN-Wohnflächenberechnung abweichen kann. Alle Maße sind ca.-Maße und bei Bedarf vor Ort zu prüfen.
Die Angaben in diesem Exposé erfolgen daher ohne jede Gewähr. Maßgeblich sind die im Kaufvertrag geschlossenen Vereinbarungen. Wir bitten um Ihr Verständnis.
Die Verkaufsaufgabe wurde nach bestem Wissen sorgfältig zusammengestellt. Unser Exposé beruht auf den Angaben unserer Auftraggeber. Eine Haftung hierfür kann daher nicht übernommen werden.

3,0% inkl. MwSt.
Verdient und fällig bei Abschluss eines notariellen Kaufvertrages. Jeweils zu zahlen durch den Käufer sowie den Verkäufer.

Anfrage